物件情報Property Information
物件概要
- 物件名
- 【ビバシティ古町】(4LDK)
- 物件番号
- 30
- 価格
- 4,100万円
- 間取り
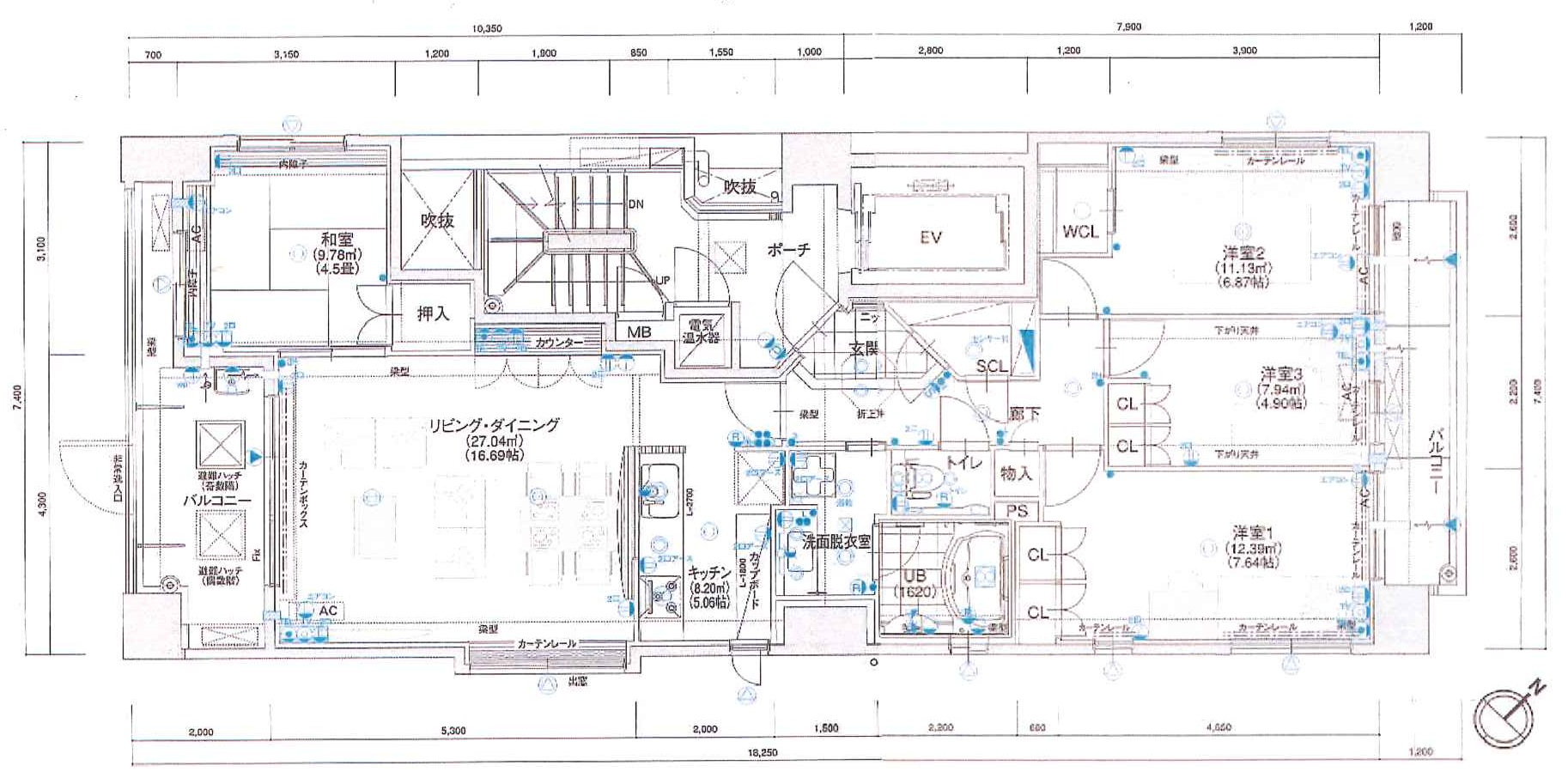
- 4LDK
- 面積(専有面積)
- 100.11㎡
- 築年数
- 2006年11月
- リフォーム
- ―
- 部屋向き
- 南西
- 階建 / 階
- 13階建13階部分
- 所在地
- 長崎市古町9
- 交通
- 長崎電気軌道「市役所」徒歩3分
- 現況
- 所有者居住中
設備
- 全居室収納
- 追炊き機能
- 浴室暖房
- 温水洗浄便座
- 人感センサー付き照明
- モニタ付インターホン
- IHコンロ
- 室内洗濯機置場
- 火災報知器
- システムキッチン
- クローゼット
- 収納スペース
- シャワー付き洗面化粧台
- ウォークインクローゼット
- シューズインクローゼット
- カウンターキッチン
- 2面バルコニー
- 浴室乾燥機
- オートバス
- 3口コンロ
- 浴室に窓有
アピールポイント
詳細情報
- 取引態様
- 専任媒介
- 管理費(円/月)
- 16,000円/月
- 積立金(円/月)
- 15,800円/月
- 駐車場
- 有(空き要確認)
- 駐車場料金
- 17,000円
- 土地権利
- 所有権
- 引渡時期
- 2026年2月上旬
- バルコニー面積
- 17.47㎡
- 間取り詳細
- 和4.5、洋4.9、洋6.8、洋7.6、LDK19.3
- 建物構造
- RC
- 地目
- 宅地
- 総戸数
- 12戸
- 管理形態
- 全部委託
- 面積計測方式
- 壁芯
お問い合わせ先
所在地
〒850-0876 長崎県長崎市賑町10番1号
長崎電気軌道『めがね橋』電停下車 徒歩30秒
免許番号
宅地建物取引業 長崎県知事(6)第3170号
所属団体
長崎県宅地建物取引業協会 会員





