物件情報Property Information
物件概要
- 物件名
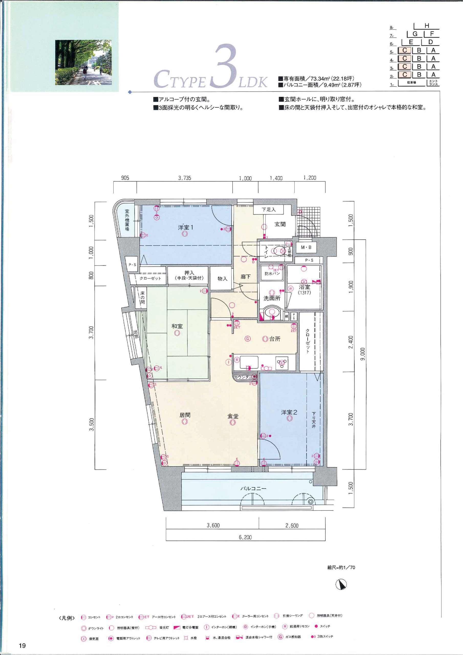
- 【ビバシティ千歳】(3LDK)
- 物件番号
- 21
- 価格
- 2,300万円
- 間取り
- 3LDK
- 面積(専有面積)
- 73.34㎡
- 築年数
- 1997年10月
- リフォーム
- ―
- 部屋向き
- 南西
- 階建 / 階
- 8階建て3階部分
- 所在地
- 長崎市千歳町16-17
- 交通
- 長崎電気軌道「千歳町」徒歩7分
- 現況
- 空室
設備
- モニタ付インターホン
- 都市ガス
- 火災報知器
- オートロック
- クローゼット
- 室内洗濯機置場
- シャワー付き洗面化粧台
- エレベーター
- システムキッチン
- 3口コンロ
- 宅配ボックス
- 全居室収納
- ウォークインクローゼット
- カウンターキッチン
- 浴室乾燥機
- 温水洗浄便座
アピールポイント
詳細情報
- 取引態様
- 専任媒介
- 管理費(円/月)
- 9,500円/月
- 積立金(円/月)
- 14,600円/月
- 駐車場
- 有(機械式駐車場)
- 駐車場料金
- 9,000円
- 土地権利
- 所有権
- 引渡時期
- 即時
- バルコニー面積
- 9.49㎡
- 間取り詳細
- 和6、洋5.7、洋5.7、LDK13.4
- 建物構造
- RC
- 地目
- 宅地
- 総戸数
- 17戸
- 管理形態
- 全部委託
- 面積計測方式
- 壁芯
お問い合わせ先
所在地
〒850-0876 長崎県長崎市賑町10番1号
長崎電気軌道『めがね橋』電停下車 徒歩30秒
免許番号
宅地建物取引業 長崎県知事(6)第3170号
所属団体
長崎県宅地建物取引業協会 会員









